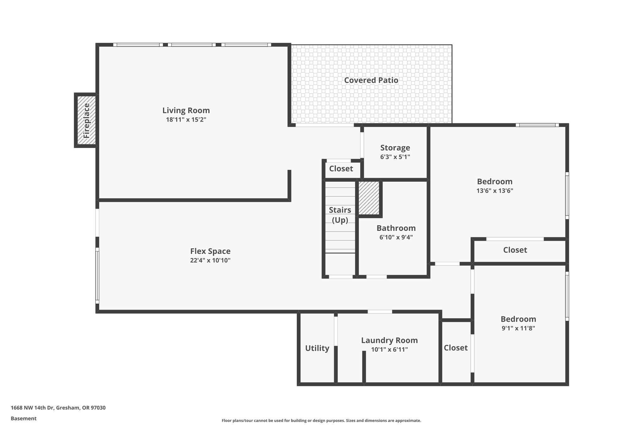
1668 NW 14th Dr, Gresham, 97030
Toggle Navigation
Images
Floor Plans
3D Tour
Map
1668 NW 14th Dr
Gresham, 97030
Scroll to Content
Images
Slideshow
Photo Grid
Hide
Previous
Next
Show more
Floor Plans
Slideshow
Photo Grid
Hide
Previous
Next
3D Tour