5689 NW Lark Meadow Terrace, Portland, OR 97229
Toggle Navigation
Images
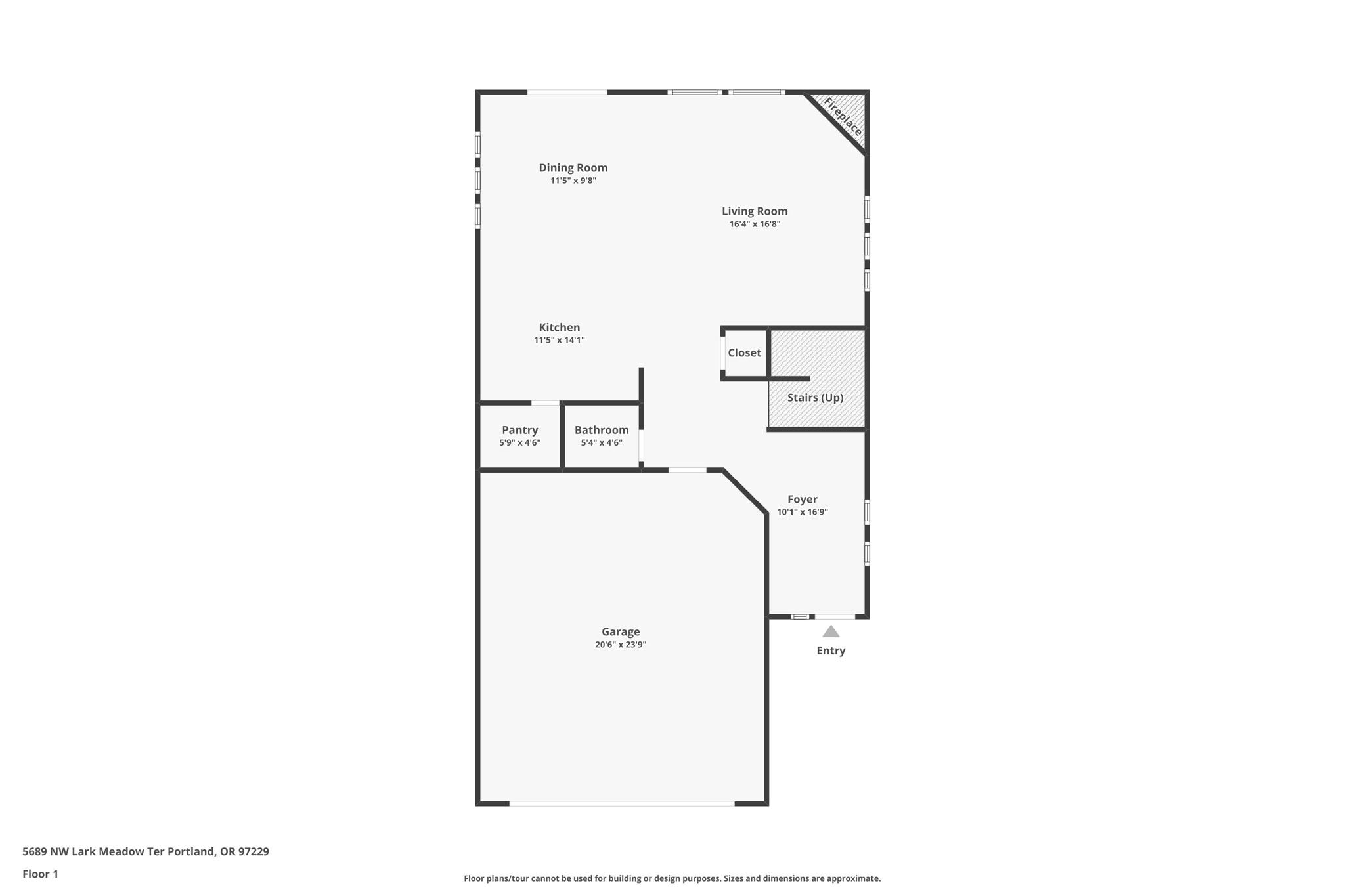
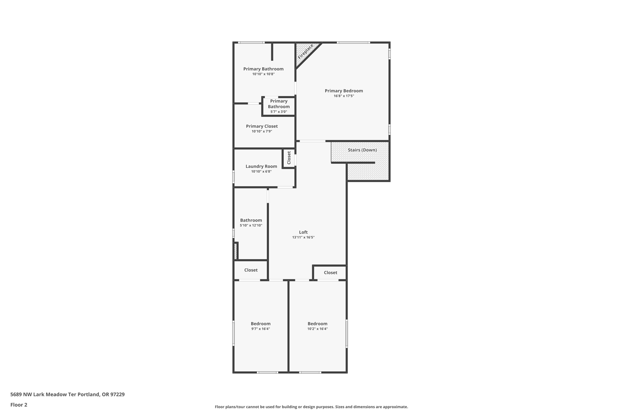
Floor Plans
3D Tour
Map
5689 NW Lark Meadow Terrace
Portland, OR 97229
Scroll to Content
Images
Slideshow
Photo Grid
Hide
Previous
Next
Show more
Floor Plans
Slideshow
Photo Grid
Hide
Previous
Next
3D Tour